Product: Bespoke Glazing – Entrance with automated sliding doors
Application: Arsenal FC, Highbury House
Product: Bespoke Glazing – Entrance with automated sliding doors
Application: Arsenal FC, Highbury House
Glasstec Systems was appointed to design and build a new, bespoke entrance canopy with automated sliding doors at Highbury House, North London.
Highbury House, on Drayton Park, is the administrative hub for the Emirates Stadium complex that includes the stadium of Premier League football club, Arsenal FC.
Due to our expertise in designing bespoke structural glazing solutions, Glasstec Systems was approached to design and build a customised canopy entrance with glass sliding doors as part of the building’s refurbishment.
We began the design process immediately after the project was commissioned in September 2025, working to an installation deadline of January 2026. The bespoke tunnel-effect canopy was to replace an existing revolving door set.
The brief was to design and build a new bespoke entrance with automated sliding doors that would interface with the existing curtain walling (non-structural, lightweight façade).
The building entrance also needed to be made more secure. The existing doors only provided a single door set for access which was no longer adequate.
Although meeting the operational and security needs was the key driver for the redevelopment of the doorway, it was also felt the building’s exterior needed a refresh. The concept of a football players’ tunnel provided the new aesthetic theme.

Glasstec Systems designed, built and installed a bespoke steel tunnel canopy to replace the revolving door set.
The steel frame was wrapped in factory pressed, custom made metal panels, with no visible fixings, in Arsenal FC club colours to provide the feel of a football entrance tunnel.
The two, state-of-the-art automated sliding doors were installed and synchronised on a sensor network connected to the front desk and fire alarm for a fully integrated operation.
The aesthetics and security of these door sets met all requirements of the brief:
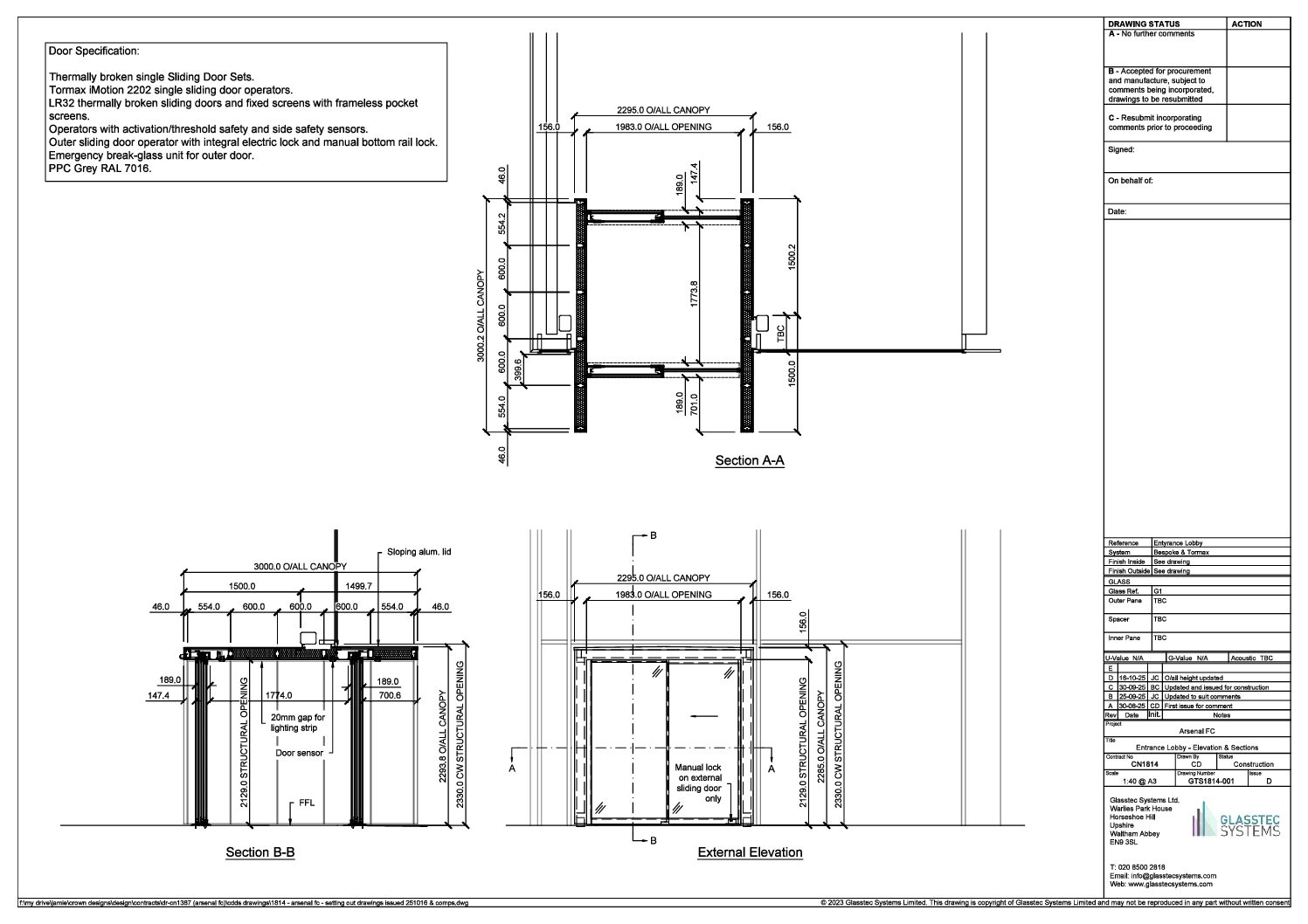
Tormax iMotion 2022 single sliding door operators
Designed for high traffic, contemporary and aesthetically demanding environments, these sliding door operators feature powerful, but quiet, alternating current (AC) motor technology.
Operators with activation/threshold safety and side safety sensors
The operators use radar to detect motion, and active infrared (AIR) for threshold safety to detect people and prevent the doors from closing onto stationary pedestrians
Outer sliding door operator with integral electric lock and manual bottom rail lock
The integral automatic electric lock system and manual bottom rail lock combine to provide a secure door system ideal for a commercial building with high foot traffic
Emergency break-glass unit for the outer door
A break-glass unit was installed next to the outer door to allow for manual, instant unlocking in the event of an emergency
PPC Grey RAL 7016 coating
Anthracite grey PPC RAL 7016 coating was applied for a durable, contemporary finish with weather and UV protection.

To overcome these challenges we held a number of design meetings with all project parties including internal design teams, other trades and the client, to collaborate and meet the brief within short deadlines.
Meeting the handover deadline was particularly satisfying given the work that was required to complete the project to the highest specification, but Glasstec Systems made it work.
The aesthetic of the canopy structure and doors was exactly what the client had asked for.
Security concerns were expertly addressed. The additional door set with a higher specification locking facility improved security for the building.
The client was extremely happy with the aesthetic and operational results and our commitment to meeting the deadline.
Glasstec Systems is a team of structural glass specialists with vast experience in architectural glazing projects of all sizes and levels of complexity.
Are you specifying structural glazing for an upcoming residential or commercial project? Contact Glasstec Systems to find out how we can work together.